Save the City! Read some books | Dyplom magisterski

Miasto:

Do 2050 roku 67 procent populacji świata będzie mieszkać w miastach. Miasto rozlewa się i przepełnia na obrzeżach. Wyludnia w centrum. Uzależnia od samochodu. Zmusza mieszkańców do codziennych wielogodzinnych podróży. Z domu do pracy, z pracy do sklepu. Zawsze w korkach. Zawsze w biegu.

Kraków:

Kraków się dusi. 188 dni w roku w Krakowie przekroczona była w roku 2016 norma zanieczyszczeń PM10. Obowiązująca norma dobowa to maksymalnie 50 µg/m3. Nie może być przekraczana częściej niż przez 35 dni w roku. Zieleń stanowi 9 procent powierzchni miasta. Brakuje przestrzeni publicznych. Brakuje drzew. Centrum jest podporządkowane turystom. Obrzeża pozostają dla mieszkańców.

Książka:

Książka rocznie. Nawet mniej – tyle czyta przeciętny obywatel Polski. W 2016 trzydzieści siedem na sto badanych przeczytało jedną lub więcej książek. W stosunku do roku poprzedniego w 2016 roku o 2 punkty procentowe zmniejszyła się liczba osób deklarujących korzystanie z biblioteki publicznej (z 13% do 11%); proporcjonalnie (z 17% do 13%) zmniejszył się również udział książek wypożyczonych z bibliotek publicznych w odpowiedziach dotyczących źródeł czytanych książek.

Problem w rejonie Rajskiej:

Problem łączy w sobie te trzy elementy – miasto, Kraków i książki. Problem wygląda niepozornie oglądany z perspektywy przechodnia. Jest długi, wąski. Nieuporządkowany. Dopiero z wysokości widać, że ciągnie się na wiele setek metrów. Problemem jest działka usytuowana obok Wojewódzkiej Biblioteki Publicznej, która jest jak rana w zwartej tkance miasta – rozrywa ją i dzieli. Na działce tej nie ma nic oprócz miejsca na 60 samochodów i trzech bud z jedzeniem. Problem ten jest nierozwiązany od lat.

Rozwiązanie:

Rozwiązanie problemu może być krokiem do uzdrowienia miasta. Przewietrzenia Krakowa – poprzez zaprojektowanie parku. Uratowania książki poprzez stworzenie dla niej miejsca w przestrzeni miejskiej i świadomości mieszkańców. Uzdrowienia miejskiej tkanki poprzez jasne i czytelne decyzje urbanistyczne. Przyczynienia się do poprawy życia mieszkańców centrum Krakowa poprzez stworzenie dla nich przestrzeni, w której to oni będą odbiorcami.

Save the city! Read some books:

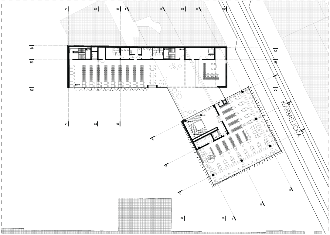
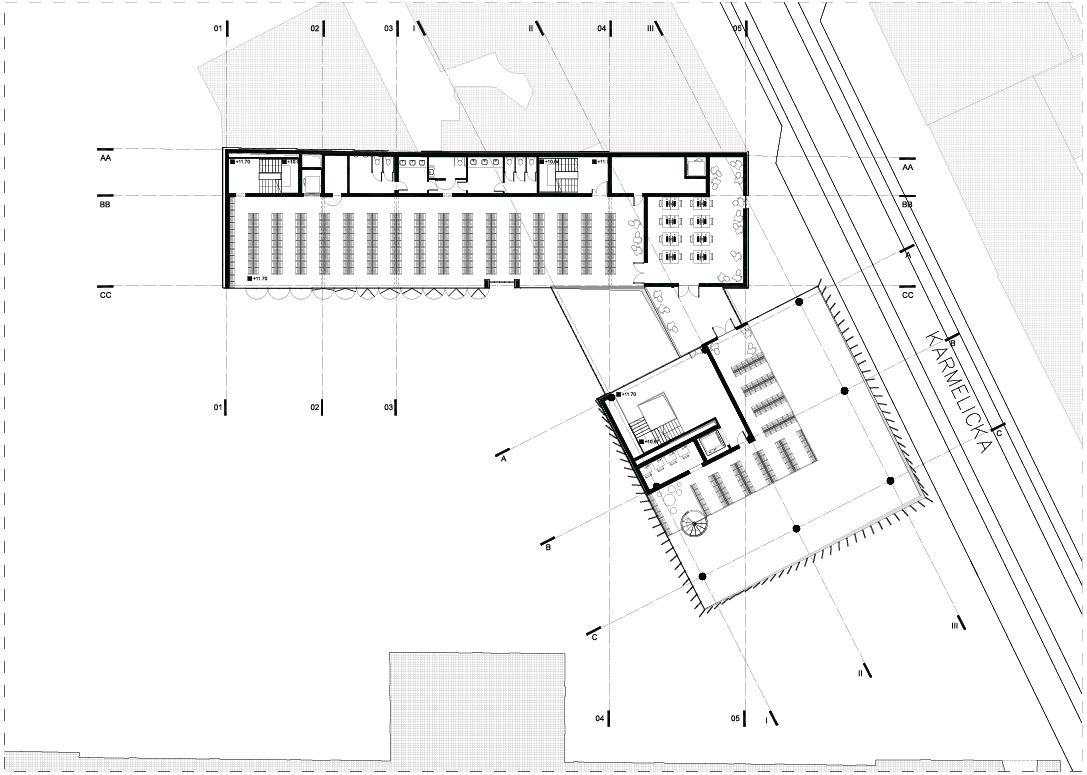
Projekt zakłada rewitalizację tkanki miejskiej oraz zagospodarowanie przestrzeni tak, by służyła mieszkańcom. Działka ma stać się przestrzenią połączenia między, do tej pory, odseparowanymi fragmentami miasta. Ma ona stanowić zielony most łączący ulicę Karmelicką, której obecna funkcja jest głównie funkcją tranzytową, z ulica Dolnych Młynów. Ulicę Rajską z ulicą Piotra Michałowskiego. Aby było to możliwe projekt proponuje stworzenia otwartego przejścia w fasadzie Biblioteki, tak by umożliwić umożliwić przekształcenie ulicy Kochanowskiego w deptaki. Konwencja projektu przestrzeni publicznej to zabawa z odbiorcą – tworzenie nowych, wypełnionych zielenią, niewielkich wnętrz urbanistycznych na wielu poziomach, które zmieniają się wraz poruszaniem się po założeniu. Taki układ ma zachęcić odbiorców do odkrywania przestrzeni otaczającej kompleks Biblioteki. Zabudowa działki ma na celu stworzenie przestrzeni, która z jednej strony pozwoli na łatwe przedostanie się z ulicy Karmelickiej na ulicę Dolnych Młynów, ale z drugiej strony będzie tworzyć urozmaiconą ścieżkę pełną nowych dominant i otwarć widokowych, która wraz z kompleksem Tytano przy ulicy Dolnych Młynów stanowić będzie katalizator aktywności.

Save the city! Read some books – Budynek Krakowskiego Ogrodu Kultury:

Budynek, jako katalizator, otwarty jest na zmieniające się potrzeby mieszkańców miasta, dlatego też funkcjonuje całą dobę przyciągając odbiorców do wnętrza parku. Ma on budować w świadomości mieszkańców miasta pozytywne skojarzenie między rozrywką, kulturą a biblioteką. Ponieważ praktyki lekturowe są praktykami społecznymi, dlatego też otwarty dziedziniec usytuowany w obniżeniu dostępny jest całodobowo. Krakowski Ogród Kultury ma przyciągać i wabić do wnętrza założenia. Tworzyć jasne i czytelne skojarzenie między książką, rozrywką i piękną architekturą.